
8. 燃氣導熱油爐低氮型燃燒器選配
所謂燃氣導熱油鍋爐不外呼有兩大件構成,一件是燃氣導熱油鍋爐的爐本體,另一件是燃氣導熱油鍋爐所用的低氮燃氣燃燒器。
燃燒器是一種組織燃燒的裝置,是一種機電一體化產品,從燃料上分大致可分為:液化氣、天然氣、城市煤氣型。
低氮燃氣燃燒器都是鍋爐廠家外購的,為此使用戶了解低氮燃氣燃燒器。
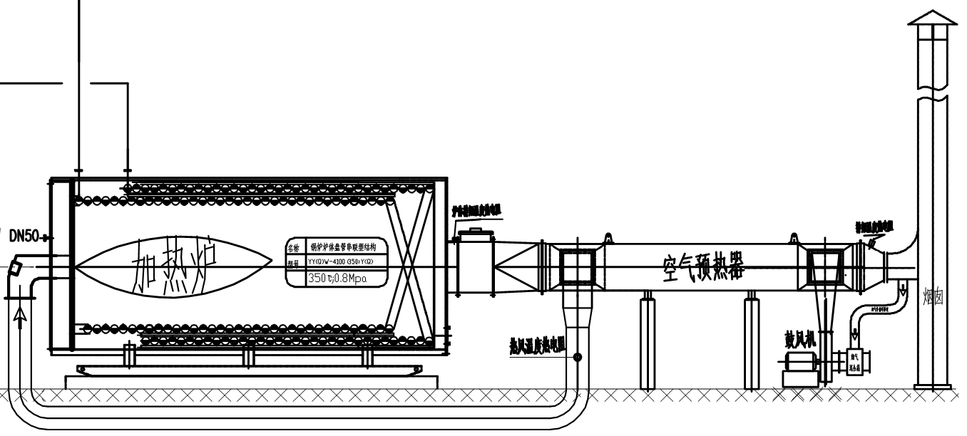
為了達到節能,在鍋爐煙道上加裝了空預器,使冷風變熱風送爐膛助燃天燃氣,提高爐膛溫度,起到節能的效果。燃燒器用分體低氮燃燒器配導熱油鍋爐。

分體式燃氣燃燒器;為突破一體機的性能***如較大出力時更大功率的風機不必一體內置,允許使用髙溫助燃風,動力噪音源可轉移至降噪隔離區等.根據應用系統狀況可選擇分體式燃燒器,鍋爐尾部加裝空氣預熱器,需選用分體式熱風型燃燒器。
![]() | ![]() |
但隨著國家環保排放標準的提高,對不同的地區燃氣導熱油鍋爐的使用排放,有著不同的環保排放標準,特別是對氮氧化物排放要求更嚴格。

北京,鄭州,西安,寶雞,咸陽,渭南,銅川,成都,山西等地區氮氧化物排放小于30毫克/每立方米。
上海,杭州,長三角地區氮氧化物排放小于50毫克/每立方米。
我們工廠出廠的燃氣導熱油鍋爐選購的超低氮型燃氣燃燒器是根據用戶當地的環保要求來選配的,是符合當地環保要求的超低氮型燃氣燃燒器。
客戶如需要采購燃氣導熱油爐,可咨詢常州市上能鍋爐有限公司芮總,聯系電話:13815029577并關注公司網站:www.czrsgl.com