蒸汽發生器
相關產品:
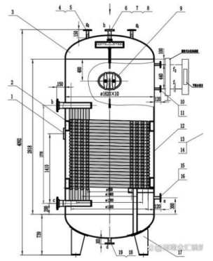
蒸汽發生器是?高溫導熱油與水換熱產生蒸汽的換熱器,通常采用?間壁式列管換熱器?,其核心結構包括殼體、列管束、管板、折流板等部件?,高溫導熱油在管內流動,水在殼程逆向流動,通過管壁實現間接熱交換,水吸收熱量后汽化生成蒸汽,而導熱油則被冷卻?。
①蒸發器規格:蒸汽產量:0.15-20t/h,工作壓力:0.8Mpa-1.4Mpa,材 質:Q235B/Q345R/S30408,結構形式:臥式,工作溫度:160℃-210℃ 介 質:水、水蒸汽



②結構特點:
l 列管束?:采用多層螺旋纏繞或直列式排列,增大換熱面積?。
l 折流板?:強制殼程流體呈S形流動,提升湍流強度,強化換熱效率?。
l 管程與殼程?:管程走高溫導熱油,殼程走水,兩者完全隔離,避免交叉污染?
③工作原理
l 
?熱傳遞?:高溫導熱油通過管壁將熱量傳遞給殼程的水。
l ?汽化?:水吸收足夠熱量后達到沸點,汽化生成蒸汽? 。
l ?效率優化?:通過折流板設計,使水流形成湍流,提高傳熱系數(可達200-500W/(m2·K))?
應用場景 該設備廣泛應用于石油化工、電力等行業,用于高溫油品冷卻、水加熱及余熱回收? 。
返回頂部
掃一掃 關注我們