燃氫氣熔鹽爐是固堿蒸發,濃縮的熱源裝置
相關產品:
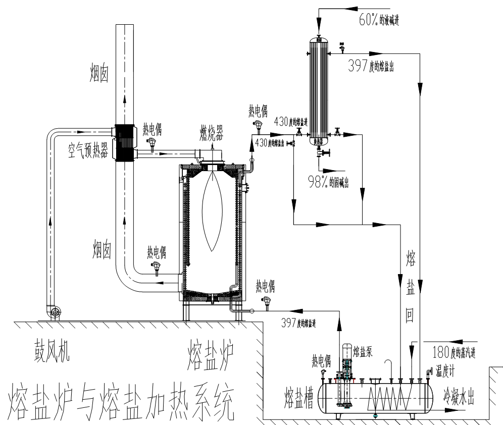
固堿蒸發濃縮工藝中,燃氫氣熔鹽爐是一種高效、清潔的高溫熱源解決方案?,適用于將液堿(如32%或48% NaOH)進一步濃縮為98.5%以上的熔融堿,并最終制成片堿或粒堿。該系統以氫氣為燃料加熱熔鹽,再通過熔鹽間接加熱堿液,實現安全、穩定、高熱效率的連續化生產 。
一、核心工藝流程

1.?預濃縮階段:?
液堿首先經多效蒸發系統(如雙效或三效逆流)從初始濃度(如32%)提升至45%~61%,大幅降低水分含量并減少后續高溫蒸發的能耗 。
2.?終濃縮階段:?
預濃縮后的堿液進入降膜蒸發器,在?常壓下與高溫熔鹽(500~540℃)進行換熱?,形成向下流動的堿膜,水分持續汽化,最終得到98.5%以上的熔融堿 。
3.?成型與包裝:?
熔融堿送入片堿機,經冷卻滾筒固化、刮刀成片后破碎、篩分、自動包裝,形成商品級片狀燒堿
二、燃氫氣熔鹽爐的技術優勢
?高熱效率與精準控溫?:氫氣燃燒火焰純凈、溫度均勻,配合PLC自動控制系統,可實現供熱溫度波動≤±1℃,保障產品質量穩定性 。
?環保清潔?:燃燒產物主要為水蒸氣,幾乎無硫化物、顆粒物排放,符合嚴格環保標準;結合SCR脫硝技術,可進一步降低氮氧化物排放 。
?安全性高?:熔鹽在常壓下運行,工作溫度可達550~600℃,避免高壓蒸汽系統的安全隱患;且氫氣可通過管道穩定供應,配合防爆設計確保運行安全 。
?能源適配性強?:尤其適合擁有副產氫氣的氯堿企業,實現資源循環利用,降低燃料成本 。
三、關鍵設備與材料要求

??熔鹽組成?:常用配比為KNO? 53%、NaNO? 40%、NaNO? 7%,商品名為“希特斯”(HTS),熔點約142℃,適用溫度150~580℃ 。
??設備材質?:蒸發器、降膜管等接觸濃堿部位需采用鎳基合金或316L不銹鋼,以抵抗高溫濃堿腐蝕 。
??控制系統?:集成DCS或APC先進過程控制系統,實現全流程自動化監控,濃度控制精度可達±0.5% 。
四、燃氫熔鹽爐安全操作規范要點
1.運行前準備?
檢查熔鹽液位是否在容積的1/2~3/4之間,嚴禁超裝或低液位運行。
確認所有閥門、儀表、電氣設備狀態正常,加熱元件絕緣良好,接地系統可靠。
工具、夾具、工件入爐前必須?預熱烘干?,防止水分進入高溫熔鹽引發噴濺事故。
啟動通風系統,確保爐房空氣流通,避免可燃氣體積聚。
2.點火與運行控制?
嚴格按照操作規程執行點火程序,先開啟通風吹掃5~10分鐘,排除殘留氣體。
氫氣供氣壓力應穩定,燃燒器點火時須采用自動點火裝置,禁止明火引燃。
運行中實時監控爐溫、熔鹽循環流量、氫氣壓力及泄漏報警信號,溫度控制波動宜≤±2℃。
嚴禁將頭伸入排氣罩內,保持爐口加蓋,減少熱輻射和有害氣體逸散。
3.停爐與維護?
正常停爐時先關閉燃燒器和氫氣閥門,待熔鹽溫度降至?400℃以下?再停熔鹽泵,防止局部過熱結焦。
將熔鹽排入儲鹽槽,切斷總電源,做好設備防銹防腐處理。
長期停用前應對爐體進行烘干處理,避免下次啟動時發生爆沸。
定期校準溫控儀表、壓力表、安全閥,并記錄維護臺賬。
五、氫氣泄漏應急處置措施
氫氣爆炸極限為?4%~75%(體積濃度)?,遇火花極易引發爆炸,必須迅速、科學應對。
1.?立即切斷氣源?
迅速關閉上游氫氣閥門,隔離泄漏系統;若無法切斷,應停止供氣設備運行。
2.?人員疏散與警戒?
立即撤離泄漏區域人員至上風安全地帶,設置警戒區,嚴禁無關人員進入。
3.?消除點火源?
嚴禁開關電器、使用手機、金屬撞擊等可能產生火花的行為;所有設備應為防爆型。
4.?通風稀釋?
開啟強制通風系統或使用霧狀水槍噴灑,加速氫氣擴散,降低濃度至安全范圍。注意控制水流速度,防止靜電引發二次風險。
5.?專業處置?
應急人員須佩戴自給式正壓呼吸器、穿防靜電工作服,使用銅制工具進行堵漏或轉移氣瓶。
若發生著火,?切勿盲目滅火?,應在確保能安全切斷氣源的前提下控制燃燒,防止回火爆炸。
6.?監測與報警?
現場應配備氫氣泄漏檢測報警儀,建議聯動自動切斷閥和通風系統,實現早期預警。
六、典型應用場景
?副產氫回收利用?:氯堿廠、石化企業將生產過程中產生的副產氫用于鍋爐供熱,變廢為寶
聯系人:常州市上能鍋爐有限公司 芮經理 13815029577
關注本公司產品信息,網站:www.czsngl.com, m.xinyidafrp.cn www.czrsgl.com
返回頂部
掃一掃 關注我們